Over 25 years experience
Our Process
We believe that every project is a custom one. As mountain design experts we have the experience and expertise to bring your project to life whether it be a new custom home, remodel, commercial development or historic renovation. We absolutely love a challenge! With over 25 years experience designing in Colorado’s high altitude environment we understand how to efficiently transform a challenging site into a creative and dynamic project. Our passion for design shows through on each of our projects and we pride ourselves on being your advocate throughout the entire creative and build process.
How We Work
Pre Design Process
In our initial meeting, we’ll take a close look at the size and scope of your project. Together, we’ll walk the site, discuss your budget and schedule and/or review any conceptual sketches, site or floor plans and help identify challenges and cost benefits. Internally, we’ll analyze local requirements, codes and permits and provide you with a full analysis of your project, including preliminary budget and timeline.
How We Work
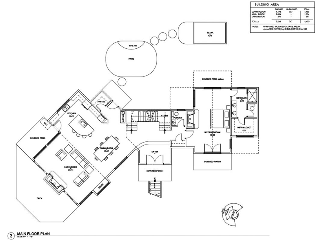
Schematic Design
This is where we examine design options through site plans, (1/8”=1’0” drawings), floor plans and building elevations. Your building begins to come to life when we use our ArchiCad software to create a 3D model. Now you can visualize the structure and begin to select exterior building materials. We now help you begin to solicit general contractors, review proposals, help you conduct interviews and assist you with the selection process of finding the right contractors to carry out the plans.
How We Work
Design Development
In the design development phase, we begin developing the overall site plan. We now create detailed drawings on a larger scale, (¼”=1’0”), that include floor plans and building elevations, enabling us to begin to request proposals for structural engineers. We also submit – and work alongside the necessary review boards and municipal authorities to gain approvals, thus allowing engineering services to commence.
How We Work
Construction Documents
After the initial approvals, we now create the drawings to submit for building and construction permits. These are very detailed drawings that show each section of the building so it can be thoroughly reviewed by all permitting review boards and obtain the stamped and signed permit so that actual construction can begin.
How We Work
Construction Administration
While some agencies may consider their job complete, our team stays with your project during the entire construction phase. During construction we are here to provide clarification and documentation as needed. We are available to you to review shop drawings, evaluate pay requests and provide site visits for observation.




